* Furnished inner city apartment located on the corner of Moorabool Street
* Close to all local amenities, public transport, Deakin Waterfront, University Hospital and St John of God, St John of God, TAC and WorkSafe head offices
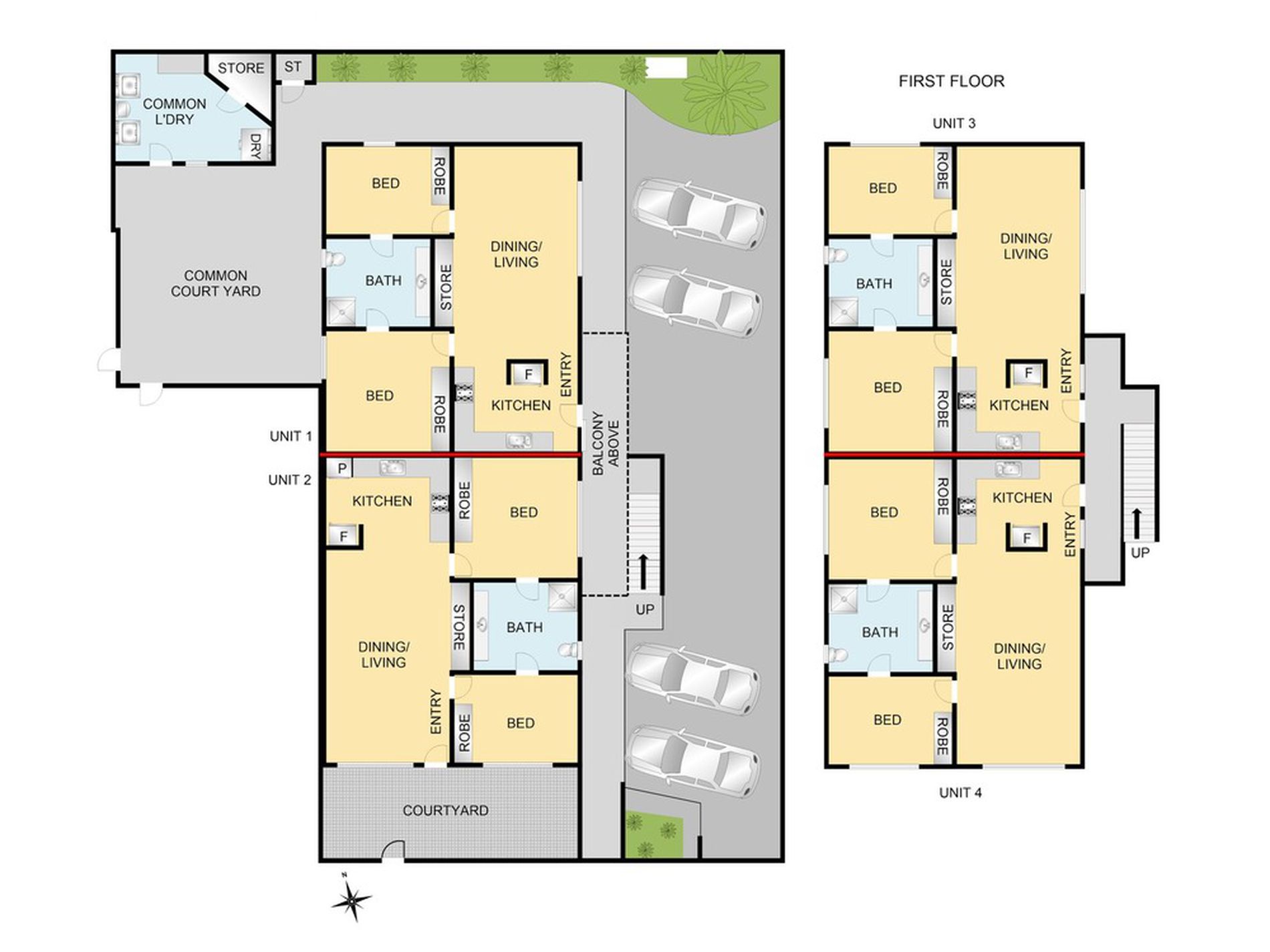
* Two bedrooms with built in robes
* One bedroom with a Queen sized bed
* One bedroom with two single sized beds
* Contemporary kitchen with electric cooking appliances, dishwasher, microwave and fridge
* Open plan living with reverse cycle split system for heating and cooling
* Central bathroom with separate shower (no bath)
* Small, private balcony
* One car park per tenancy onsite
* Laundry facility provided in the communal laundry - washing machine and coin-operated dryer inclusive
• ARRANGING AN INSPECTION IS EASY! To book a time to inspect, simply click on book an inspection time or email agent to be notified of inspection times. By registering you will be instantly informed of any updates, changes or cancellations.
• PHOTO ID MUST BE SHOWN BY ALL ATTENDEES FOR INSPECTION ENTRY – this is a requirement for all COVID-19 contact tracing protocol
• APPLYING - Apply online via 1FORM. The application ID number will be sent to you upon submission of your application.
• TENANCY APPLICATIONS WILL ONLY ACCEPTED AND PROCESSED ONCE THE PROPERTY HAS BEEN INSPECTED
• PLEASE NOTE A MINIMUM OF 24 HOURS NOTICE MAY BE REQUIRED TO INSPECT THE PROPERTY, especially if tenanted.
Features
- Split-System Air Conditioning
- Split-System Heating
- Balcony
- Built-in Wardrobes
- Dishwasher

















